ОТДЕЛ ОБОРУДОВАНИЯ:  +7 (343) 298-99-89; +7 (343) 382-00-87

E-mail:  revanta2011@mail.ru
Адрес: 

Березовский тракт, 100, Екатеринбург


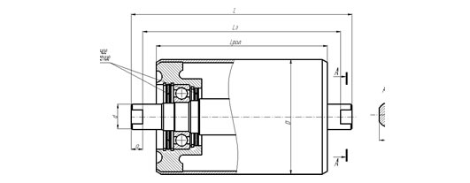
Ролики гладкие с войлочным уплотнением

Ролики гладкие с войлочным уплотнением

1. Смазка подшипников закладная: литол-24 ГОСТ 21150-87; внутренняя поверхность трубы роликов покрыта консервационной смазкой.
2. Температура эксплуатации от -40С до +40С.
3. Ролики имеют двухстороннее войлочное уплотнение подшипниковых узлов, которое позволяет ролику работать в условиях нормальной запыленности.
 
Обозначение ролика

№ чертежа

Ширина ленты, В

D

Lрол

L

а

S

d

№ подш.

Масса, кг

Г-89х195-10х13

9574.00.00

500

89

195

210

230

10

13

19,5

304

4,45

Н-89х600-10х13

 

600

604

624

9,52

Г-89х245-10х13

 

650

245

255

275

4,78

Н-89х750-10х13

 

750

754

774

12,81

Г-102х195-10х13

9780.00-00

500

102

195

210

230

10

13

19,5

304

5,7

Н-102х600-10х13

9780.00-01

590

604

624

11,3

Г-102х245-10х13

9780.00-02

650

240

255

275

6,2

Н-102х750-10х13

9780.00-03

740

754

774

12,9

Г-108х195-10х13

8655.00.00-00

500

108

195

210

230

10

13

19,5

304

5,4

Н-108х600-10х13

-02

600

604

624

11,5

Г-108х245-10х13

-01

650

245

255

275

6,3

Н-108х750-10х13

-03

750

754

774

13,2

Г-108х310-10х13

-09

800

310

312

332

7,2

Г-108х380-10х13

-12

1000

380

382

402

8,2

Г-108х460-10х13

-13

1200

460

462

482

9,3

Г-127х310-10х16

8639.00-00

800

127

310

312

332

10

16

24,5

305

9,7

Н-127х950-10х16

-03

950

956

976

20,7

Г-127х380-10х16

-01

1000

380

382

402

10,9

Н-127х115010х16

-04

1150

1156

1176

24,1

Г-127х460-10х16

-02

1200

460

462

482

12,3

Н-127х1400-10х16

-05

1400

1406

1426

28,3

Г-133х310-12х16

9657.00-00

800

133

310

312

336

12

16

24,5

60305

9,7

Н-133х950-12х16

-03

950

956

980

21,1

Г-133х380-12х16

-01

1000

380

382

406

11,0

Н-133х1150-12х16

-04

1150

1156

1180

24,6

Г-133х460-12х16

-02

1200

460

462

486

12,4

Н-133х1400-12х16

-05

1400

1406

1430

28,9

 

Г-159х310-10х16

8624.00.00-12

800

159

310

312

332

10

16

29,5

306

16,4

Н-159х950-10х16

-25

950

956

976

33,1

Г-159х380-10х16

-00

1000

380

382

402

17,3

Н-159х1150-10х16

-01

1150

1156

1176

38,4

Г-159х460-10х16

-02

1200

460

462

482

19,9

Н-159х1400-10х16

-04

1400

1406

1426

44,6

Г-159х530-10х16

-05

1400

530

534

554

22,1

Н-159х1600-10х16

-06

1600

1610

1630

49,9

Г-159х600-10х16

-07

1600

600

604

624

23,8

Н-159х1800-10х16

-08

1800

1810

1830

58,3

Г-159х740-10х20

-09

2000

740

760

780

20

30,4

Н-159х2200-17х20

-10

2200

2210

2244

17

75,2

 

Примечание:

  • возможно изготовление роликов с размерами, указанными заказчиком;
  • на базе данных роликов возможно изготовление амортизирующих роликов.
 

Пример условного обозначения ролика гладкого верхнего диаметром D=159 мм, длиной Lрол=530 мм с лыской а=10 мм, S=16 мм : «Ролик Г-159х530-10х16, № чертежа 8624.00.00-05». То же для ролика гладкого нижнего диаметром D=159 мм, длиной Lрол=1600 мм с лыской а=10 мм, S=16 мм: «Ролик Н-159х1600-10х16, № чертежа 8624.00.00-06».


Доставка по России.
Скидки постоянным клиентам!

СПЕЦПРЕДЛОЖЕНИЯ

 

 

 

ПРОИЗВОДСТВО МЕТАЛЛОКОНСТРУКЦИЙ

 

ДИЛЕРСКИЕ СОГЛАШЕНИЯ

 

ПОЛЕЗНАЯ ССЫЛКА

 

ПромЭК-2005-2025
    Главная     Координаты    Разработка сайта в Екатеринбурге
Дизайн-студия D1.ru